Programme
Accueil – Exposition – Conservatoire de musique, de danse et de théâtre – Auditorium polyvalent – Ecole d’arts visuels – Centre de ressources – Bureaux administration
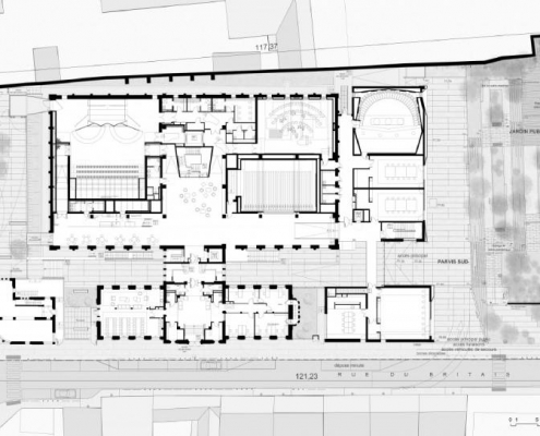
Ce projet consiste en la réhabilitation et la transformation d’une ancienne salle des coffres du Crédit Foncier en Pôle Culturel destiné à l’enseignement et à la pratique de disciplines artistiques pluridisciplinaires.
Il s’agit de fabriquer un équipement public dans un bâtiment à l’architecture dessinée et austère des années 30, sans le dénaturer, l’ouvrir, le mettre à l’échelle de la rue et offrir aux publics un lieu qui accueille et reçoit.
La préservation de « l’esprit » de la salle des coffres d’origine, de son vide intérieur majestueux, a nécessité néanmoins de compléter le projet par l’adjonction de deux bâtiments neufs.
Surface SHON : 8 570 m²
Architecte et Maître d’ouvrage
Architecte :
Atelier Bruno Gaudin Architectes
Maitre d’ouvrage :
Ville de Laval
Contribution BS SYNTHESE
Mission : synthèse technique 2D
Client : EGIS Nantes
Galerie d’images
Crédit : Atelier Bruno Gaudin Architectes








Atelier Bruno Gaudin Architectes